
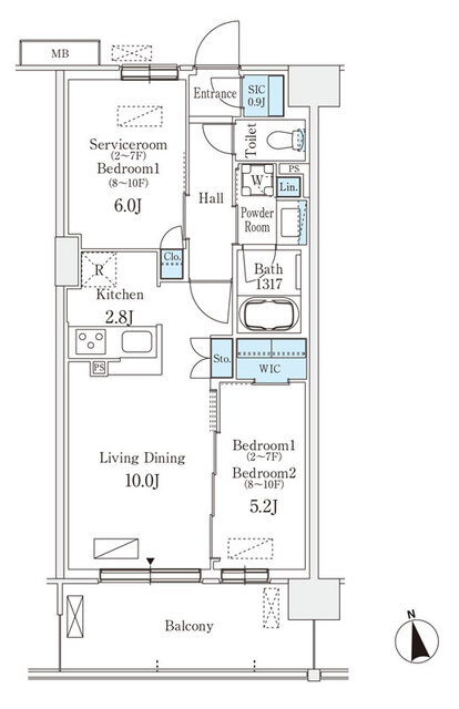
スカイグランデ津田沼 423の物件情報
| 建物構造 | 鉄筋コンクリート | 所在階/階数 | 4階/ 地上10階建て |
|---|---|---|---|
| 駐車場 | 無 | 総戸数 | |
| 引き渡し | 即 | 現況 | |
| 物件コード | 5872261 | 取引形態 | 仲介 |
| 住宅保険 | 指定家財保険加入要 | めやす賃料 |
|
| 契約 | 普通借家 | 仲介手数料 | 要確認 |
| 更新料 | 1ヶ月 | 更新事務手数料 | |
| 設備 | BT別、追焚、浴室乾燥機、洗面所独立、暖房便座、バルコニー、フローリング、ピクチャーレール、ウォークインクロゼット、シューズインクローク、オートロック、モニタ付オートロック、エレベーター、宅配ボックス、バイク置場、BS、CS、敷地内ゴミ置き場、システムK、グリル、[管理員区分]日勤、防音サッシ、キッズルーム、浴室暖房、エアコン、室内洗濯機置場 | ||
| 入居条件 | 事務所使用不可、保証人代行必須(株式会社CASA/初回保証委託料(最低20,000円):月額賃料等の50%、2年目以降:10,000円/年、決済手数料300円(税込)/月) | ||
| その他の費用 | クリーニング代102,102円、口座振替事務手数料220円/月 | ||
| 周辺環境 |
始発駅 2沿線利用可 3駅以上利用可 駅前 |
||
| 備考 |
こちらの物件はハウスメイトショップ津田沼店へ! 弊社ではLINEでのご対応も可能です!内見の際は物件現地お待合わせやオンライン対応も承っております! |
||
| お店からのコメント | こちらの物件はハウスメイトショップ津田沼店へ! 弊社ではLINEでのご対応も可能!ご案内からご契約までスムーズに行えます。また、内見の際は物件現地お待合わせやオンライン対応も承っております。些細なことでもお気兼ねなくご相談下さい! | ||
| 情報更新日 | 2026/03/17 | 次回の情報更新日 | 2026/03/24 |
※各種情報と現状に差異がある場合は、現状優先となります















































