ここから本文になります。
株式会社ハウスメイトショップ上野店
- 賃貸物件を探す
礼金0円物件
礼金0円で初期費用を抑えられます
702件見つかりました
物件にチェックを入れると、まとめてクリップやまとめて問い合わせが可能になります!
(※まとめて問い合わせの最大件数は4件です)
-
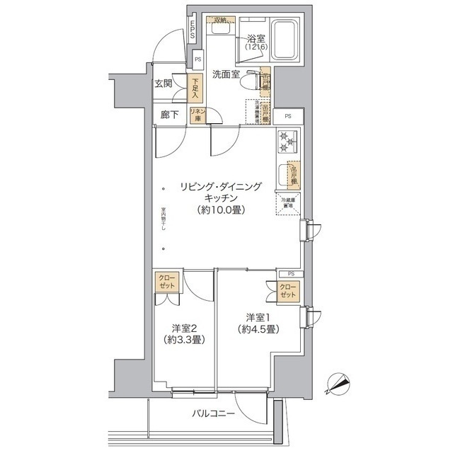
HF目黒行人坂レジデンス
-

山手線
目黒 徒歩5分東京都目黒区下目黒1丁目4-4
築年月:2002年10月
建物階数:地上6階地下2階建て
-
ウィルテラス南大塚
-

山手線
大塚 徒歩4分東京都豊島区南大塚3丁目43-5
築年月:1989年03月
建物階数:地上10階地下1階建て
-
コンフォリア新宿
-

東京地下鉄丸ノ内線
新宿三丁目 徒歩7分東京都新宿区新宿5丁目8-20
築年月:2018年03月
建物階数:地上11階地下0階建て
-
リビオメゾン新宿west
-

東京都大江戸線
新宿西口 徒歩4分東京都新宿区西新宿7丁目14-10

建物階数:地上14階地下0階建て
-
コンフォリア新宿イーストサイドタワー
-

東京都大江戸線
東新宿 徒歩5分東京都新宿区新宿6丁目27-29
築年月:2012年01月
建物階数:地上32階地下1階建て
-
ネオアーバンレジデンス駒込
-

東京地下鉄南北線
駒込 徒歩6分東京都北区西ケ原1丁目6-6

建物階数:地上12階地下0階建て
-
デュオフラッツ日本橋水天宮
-

東京地下鉄半蔵門線
水天宮前 徒歩3分東京都中央区日本橋蛎殻町1丁目28-3

建物階数:地上14階地下0階建て
-
LiveCasa文京千石premier
-

東京都三田線
千石 徒歩3分東京都文京区千石4丁目37

建物階数:地上10階地下0階建て
-
グリーンホームズ2
-

東京都大江戸線
勝どき 徒歩7分東京都中央区勝どき3丁目13-2
築年月:1994年03月
建物階数:地上14階地下1階建て
-
カスタリア浅草橋
-
総武・中央緩行線
浅草橋 徒歩5分東京都台東区柳橋2丁目16-21
築年月:2005年11月
建物階数:地上9階建て
チェックした物件を




























