ブルックサイドレジデンス木場 919

/

/
| 賃料(+管理費) |
15.3万円(+20,000円) |
| 敷金/礼金 |
1ヶ月/無 |
| 保証金/敷引 |
無/無 |
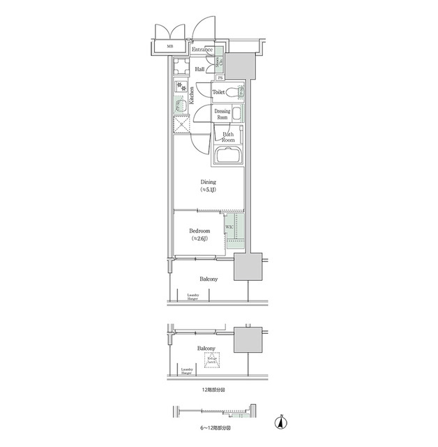
| 間取り/専用面積 |
2K/27.78m2 |
| 交通 | 東京地下鉄東西線 木場駅 徒歩9分 |
| 所在地 |
東京都江東区塩浜2丁目8-1 地図・周辺情報
|
| 物件種別 |
マンション |
| 築年月 |
新築(2026年03月) |
| 方位 |
南 |
| 建物構造 |
鉄筋コンクリート |
| 所在階/階数 |
9階/ 地上18階建て |
| 総戸数 |
|
| 引き渡し |
2026年3月中旬 |
| 現況 |
|
| 設備 |
BT別、追焚、浴室乾燥機、洗面所独立、バルコニー(面積 :5m2)、フローリング、ウォークインクロゼット、オートロック、エレベーター、宅配ボックス、バイク置場、敷地内ゴミ置き場、システムK、[管理員区分]常駐、エアコン、室内洗濯機置場 |
| 駐車場 |
無 |
| 周辺環境 |
|
| 契約 |
普通借家 |
| めやす賃料 |
|
| 住宅保険 |
指定家財保険加入要 |
| 入居条件 |
ペット相談、事務所使用不可、保証人代行必須(株式会社CASA/初回保証委託料(最低20,000円):月額賃料等の50%、2年目以降:10,000円/年、決済手数料300円(税込)/月) |
| その他の費用 |
クリーニング代44,000円、口座振替事務手数料110円/月 |
| 取引形態 |
仲介 |
| 仲介手数料 |
1.1ヶ月 |
| 更新料 |
1ヶ月 |
| 更新事務手数料 |
|
| 備考 |
ハウスメイトショップ青戸店がどこよりもスピーディーに真心こめてご対応いたします。 お客様に寄り添ったお部屋探しをさせて頂きます。物件現地でのお待ち合わせもOKです。「思い立ったが吉日!」鮮度を大事に! |
|
学生のお部屋探しから、法人様の社宅探しまで、 スタッフ一同、全力で『まごころ』込めてご対応させていただきます。 ぜひ一度、ハウスメイトショップ青戸店にお問合せください。 |
| 物件コード |
5970788 |
| 情報更新日 |
2026/01/31 |
| 次回の情報更新日 |
2026/02/07 |
各種情報と現状に差異がある場合は、現状優先となります