ここから本文になります。
株式会社ハウスメイトショップ那覇おもろまち店
- 賃貸物件を探す
- その他の情報
新築・築浅物件特集
新しい設備が整った、きれいな家に住みたい方へ新築・築浅の物件をご紹介致します。
100件見つかりました
物件にチェックを入れると、まとめてクリップやまとめて問い合わせが可能になります!
(※まとめて問い合わせの最大件数は4件です)
-
沖縄県那覇市字安里 マンション
-
沖縄都市モノレール
安里 徒歩5分沖縄県那覇市字安里
築年月:2024年9月
建物階数:地上15階建て
-
N-FLATmatsuyama
-

沖縄都市モノレール
美栄橋 徒歩5分沖縄県那覇市松山2丁目12-8
築年月:2023年11月
建物階数:地上8階建て
-
Maison deLacue
-

沖縄都市モノレール
てだこ浦西 車46分19.4キロ沖縄県うるま市字豊原379-5

建物階数:地上3階建て
-
沖縄県那覇市壺屋1丁目 1LDK マンション
-

沖縄都市モノレール
牧志 徒歩10分沖縄県那覇市壺屋1丁目

建物階数:地上9階建て
-
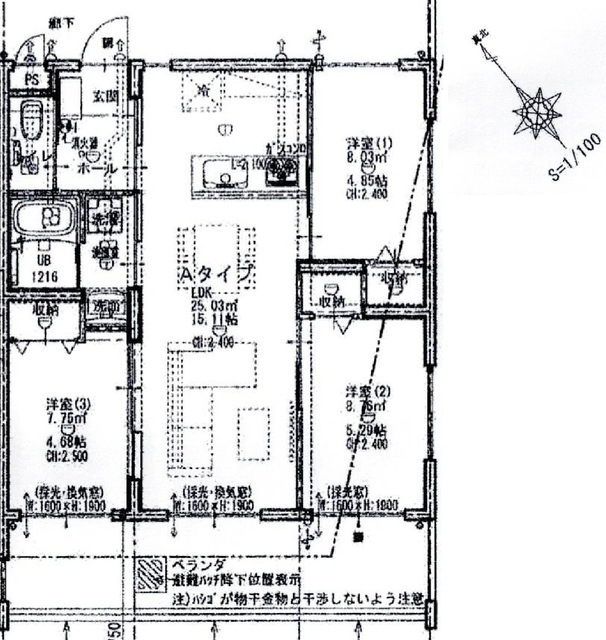
沖縄県那覇市銘苅1丁目 3LDK マンション
-

沖縄都市モノレール
古島 徒歩7分沖縄県那覇市銘苅1丁目

建物階数:地上12階建て
-
沖縄県中頭郡北中城村字ライカム 2LDK マンション
-

沖縄都市モノレール
てだこ浦西 車21分12.8キロ沖縄県中頭郡北中城村字ライカム

建物階数:地上14階建て
-
ハウスメイト管理物件
CASA VISTA
チェックした物件を
















