RJRプレシア川口 710の物件情報
| 建物構造 | 鉄筋コンクリート | 所在階/階数 | 7階/ 地上10階建て |
|---|---|---|---|
| 駐車場 | 無 | 総戸数 | |
| 引き渡し | 2026年2月上旬 | 現況 | |
| 物件コード | 5865981 | 取引形態 | 仲介 |
| 住宅保険 | 指定家財保険加入要 | めやす賃料 |
|
| 契約 | 普通借家 | 仲介手数料 | 要確認 |
| 更新料 | 1ヶ月 | 更新事務手数料 | |
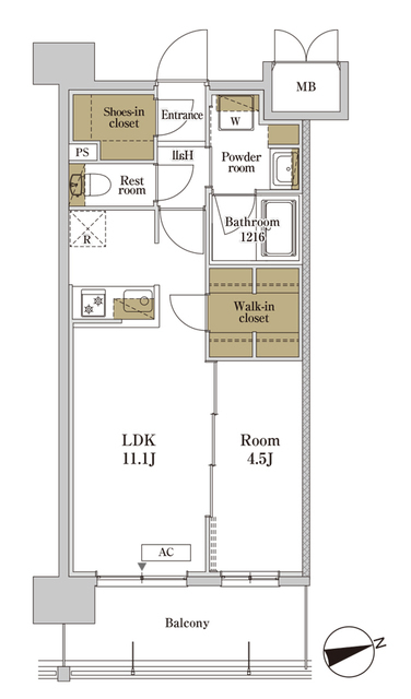
| 設備 | BT別、追焚、浴室乾燥機、洗面所独立、暖房便座、バルコニー、フローリング、ウォークインクロゼット、シューズインクローク、オートロック、モニタ付オートロック、エレベーター、宅配ボックス、バイク置場、BS、敷地内ゴミ置き場、システムK、[管理員区分]日勤、ペット足洗い場、大規模物件、エアコン、室内洗濯機置場 | ||
| 入居条件 | ペット相談、事務所使用不可、保証人代行必須(クレディセゾン・レジデントアシスタンス株式会社/初回保証委託料(最低15,000円):月額賃料等の50%、 2年目以降:10,000円/年) | ||
| その他の費用 | クリーニング代75,005円、口座振替事務手数料110円/月 | ||
| 周辺環境 | 緑豊かな住宅地 | ||
| 備考 | |||
| 情報更新日 | 2025/12/05 | 次回の情報更新日 | 2025/12/12 |
※各種情報と現状に差異がある場合は、現状優先となります









