RJRプレシア川口 103の物件情報
| 建物構造 | 鉄筋コンクリート | 所在階/階数 | 1階/ 地上10階建て |
|---|---|---|---|
| 駐車場 | 無 | 総戸数 | |
| 引き渡し | 2026年5月下旬 | 現況 | 入居中 |
| 物件コード | 5865961 | 取引形態 | 仲介 |
| 住宅保険 | 指定家財保険加入要 | めやす賃料 |
|
| 契約 | 普通借家 | 仲介手数料 | 要確認 |
| 更新料 | 1ヶ月 | 更新事務手数料 | |
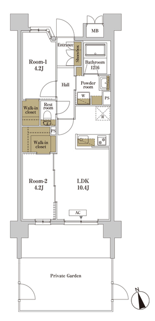
| 設備 | BT別、追焚、浴室乾燥機、洗面所独立、バルコニー、専用庭、フローリング、ウォークインクロゼット、オートロック、モニタ付オートロック、エレベーター、宅配ボックス、バイク置場、BS、敷地内ゴミ置き場、システムK、[管理員区分]日勤、ペット足洗い場、大規模物件、エアコン、室内洗濯機置場 | ||
| 入居条件 | ペット相談(小型犬または猫2匹まで飼育可能。)、事務所使用不可、保証人代行必須(クレディセゾン・レジデントアシスタンス株式会社/初回保証委託料(最低15,000円):月額賃料等の50%、 2年目以降:10,000円/年) | ||
| その他の費用 | 鍵代33,000円、クリーニング代87,160円、口座振替事務手数料220円/月 | ||
| 周辺環境 | 緑豊かな住宅地 | ||
| 備考 | |||
| 情報更新日 | 2026/03/17 | 次回の情報更新日 | 2026/03/24 |
※各種情報と現状に差異がある場合は、現状優先となります


























