領家7丁目一戸建 0000の物件情報
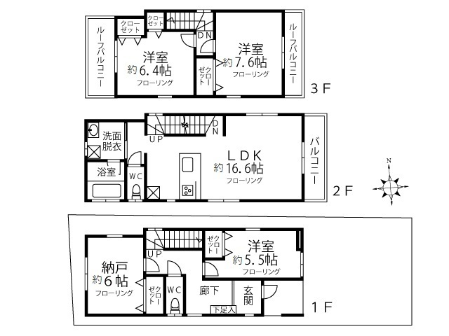
| 建物構造 | 木造 | 所在階/階数 | 1階/ 地上3階建て |
|---|---|---|---|
| 駐車場 | 付無料 | 総戸数 | 11戸 |
| 引き渡し | 即 | 現況 | 空室 |
| 物件コード | 5842078 | 取引形態 | 仲介 |
| 住宅保険 | 指定家財保険加入要 | めやす賃料 |
|
| 契約 | 普通借家 | 仲介手数料 | 要確認 |
| 更新料 | 1ヶ月 | 更新事務手数料 | |
| 設備 | 給湯、BT別、シャワー、追焚、浴室乾燥機、シャワー付洗面化粧台、温水洗浄便座、暖房便座、バルコニー、専用庭、エアコン4基以上、電話2回線、インターホン、TVモニタ付ドアホン、宅配ボックス、地上デジタル、システムK、グリル、シリンダーキー(ディンプル)、ダブルロックキー、浄水器、食器洗乾燥機、エアコン、都市ガス、室内洗濯機置場、ガスコンロ三口設置済み | ||
| 入居条件 | 子供可、ルームシェア不可、ペット相談(室内小型犬1匹迄可)、楽器相談(アップライトピアノ相談/ピアノ可)、事務所使用不可、連帯保証人不要+制度入会要、保証人代行必須(イントラスト/【契約時】月額総支払額の60%【月額】月額総支払額の1%【更新時】なし) | ||
| その他の費用 | クリーニング代137,636円/退去時、鍵交換費用33,000円 | ||
| 周辺環境 | 2駅利用可 | ||
| 備考 | |||
| 情報更新日 | 2025/12/05 | 次回の情報更新日 | 2025/12/13 |
※各種情報と現状に差異がある場合は、現状優先となります





























