プレジオ西新井 1305の物件情報
| 建物構造 | 鉄筋コンクリート | 所在階/階数 | 13階/ 地上15階建て |
|---|---|---|---|
| 駐車場 | 有敷地内 料金(税込み)2.31万円 | 総戸数 | 84戸 |
| 引き渡し | 即 | 現況 | |
| 物件コード | 6000354 | 取引形態 | 仲介 |
| 住宅保険 | 指定家財保険加入要 | めやす賃料 |
156896円 |
| 契約 | 普通借家 [契約期間]2年 | 仲介手数料 | 1.1ヶ月 |
| 更新料 | 1ヶ月 | 更新事務手数料 | |
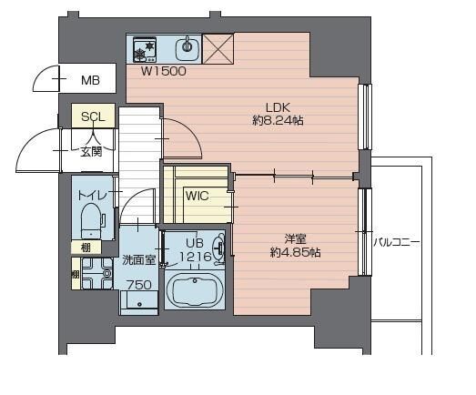
| 設備 | BT別、シャワー、追焚、浴室乾燥機、洗面台、温水洗浄便座、角部屋、バルコニー(面積 :3.78m2)、フローリング、全室フローリング、照明付、間接照明、ダウンライト、下駄箱、ウォークインクロゼット、TVモニタ付ドアホン、オートロック、エレベーター、宅配ボックス、駐輪場、バイク置場、インターネット接続可、BS、CS、防犯カメラ、システムK、TV付バス、24時間ゴミ出し可、インターネット無料、エアコン、都市ガス、室内洗濯機置場、ガスコンロ二口設置済み | ||
| 入居条件 | 2人可、ペット相談(小型犬または猫1匹(敷金1か月))、連帯保証人不要、保証人代行可(/初回契約時:20%、月額:1%、※法人契約の場合 初回保証料総賃料50% 更新料10,000円\/年(総賃料15万円以上の場合14,000円) 大手法人免除可、敷金1ヶ月上乗せ) | ||
| その他の費用 | リロレント24 要加入20,000円、クリーニング代60,500円/退去時 | ||
| 周辺環境 | お勧め物件 | ||
| 備考 |
フリーレント2ヶ月(賃料・共益費込)キャンペーン中★ペット可★インターネット無料 最新の情報やお部屋のご相談については上野店までご連絡・ご相談いただければと思います。 ※早期解約違約金:共込賃料1か月分(1年未満解約時) ※ハウスクリーニング代:60,500円(税込)退去時精算 |
||
| お店からのコメント | 学生のお部屋探しから、法人様の社宅探しまで、 スタッフ一同、全力で『まごころ』込めてご対応させていただきます。 ぜひ一度、ハウスメイトショップ上野店にお問合せください。 | ||
| 情報更新日 | 2026/04/26 | 次回の情報更新日 | 2026/05/08 |
※各種情報と現状に差異がある場合は、現状優先となります







