Ever Grace 401の物件情報
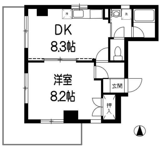
| 建物構造 | 鉄骨鉄筋 | 所在階/階数 | 4階/ 地上8階地下0階建て |
|---|---|---|---|
| 駐車場 | 無 | 総戸数 | 19戸 |
| 引き渡し | 2026年2月中旬 | 現況 | 入居中 |
| 物件コード | 5930587 | 取引形態 | 仲介 |
| 住宅保険 | 指定家財保険加入要 | めやす賃料 |
|
| 契約 | 定期借家 | 仲介手数料 | 1.1ヶ月 |
| 更新料 | 0.5ヶ月 | 更新事務手数料 | |
| 設備 | 給湯、BT別、追焚、洗面所独立、洗面化粧台、温水洗浄便座、暖房便座、角部屋、バルコニー、フローリング、収納、下駄箱、TVモニタ付ドアホン、オートロック、エレベーター、宅配ボックス、駐輪場、CATV、防犯カメラ、カードキー、室内物干機、エアコン、都市ガス、室内洗濯機置場、ガスコンロ二口設置可 | ||
| 入居条件 | 2人可、子供可、ペット不可、楽器不可、事務所使用不可、保証人代行必須(/※月額費用の50%(スカイレント加入料下限20,000円)月額保証料1,000円) | ||
| その他の費用 | Art Club1,320円/月、鍵交換費用33,000円、諸費用3,300円 | ||
| 周辺環境 |
3駅以上利用可 3沿線以上利用可 ショッピングセンター:イトーヨーカドー 1096m ショッピングセンター:ショッピングセンター ビビオ 1101m スーパー:まいばすけっと赤羽岩淵駅前店 510m コンビニ:セブンイレブン北区岩淵店 87m その他:赤羽岩淵駅(埼玉高速鉄道線) 492m その他:赤羽駅西口 1121m |
||
| 備考 |
各種サイトの物件も当社でまとめてご紹介できます。 各種サイトの物件も当社でまとめてご紹介できます。 |
||
| お店からのコメント | 学生のお部屋探しから、法人様の社宅探しまで、 スタッフ一同、全力で『まごころ』込めてご対応させていただきます。 ぜひ一度、ハウスメイトショップ上野店にお問合せください。 | ||
| 情報更新日 | 2025/12/13 | 次回の情報更新日 | 2025/12/21 |
※各種情報と現状に差異がある場合は、現状優先となります











































































