コンフォリア川口本町 0101の物件情報
| 建物構造 | 鉄筋コンクリート | 所在階/階数 | 1階/ 地上10階地下0階建て |
|---|---|---|---|
| 駐車場 | 無 | 総戸数 | 29戸 |
| 引き渡し | 即 | 現況 | 空室 |
| 物件コード | 5880864 | 取引形態 | 仲介 |
| 住宅保険 | 指定家財保険加入要 | めやす賃料 |
|
| 契約 | 普通借家 | 仲介手数料 | 1.1ヶ月 |
| 更新料 | 16.2万円 | 更新事務手数料 | |
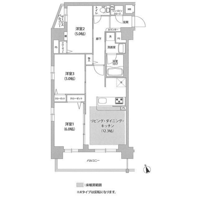
| 設備 | 給湯、BT別、追焚、浴室乾燥機、洗面所独立、温水洗浄便座、床暖房、TVモニタ付ドアホン、エレベーター、宅配ボックス、駐輪場、インターネット接続可、BS、CS、室内洗濯機置場 | ||
| 入居条件 | 保証人代行必須() | ||
| その他の費用 | 入居時:鍵交換代/33,000円、退去時:清掃費/エアコン清掃費/72,600円 | ||
| 周辺環境 | |||
| 備考 |
各種サイトの物件も当社でまとめてご紹介できます。 最新の情報やお部屋のご相談については上野店までご連絡・ご相談いただければと思います。 |
||
| お店からのコメント | 学生のお部屋探しから、法人様の社宅探しまで、 スタッフ一同、全力で『まごころ』込めてご対応させていただきます。 ぜひ一度、ハウスメイトショップ上野店にお問合せください。 | ||
| 情報更新日 | 2025/12/05 | 次回の情報更新日 | 2025/12/13 |
※各種情報と現状に差異がある場合は、現状優先となります













