コンフォリア台東根岸 0309の物件情報
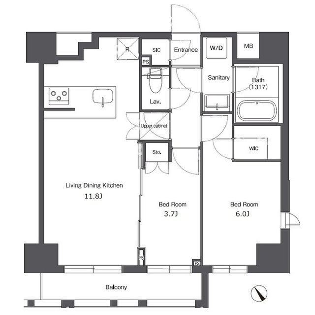
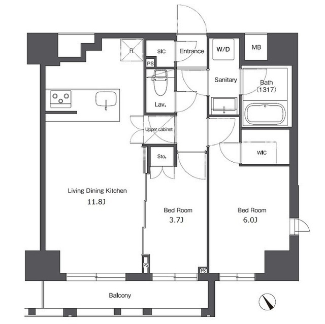
| 建物構造 | 鉄筋コンクリート | 所在階/階数 | 3階/ 地上11階地下0階建て |
|---|---|---|---|
| 駐車場 | 無 | 総戸数 | 90戸 |
| 引き渡し | 即 | 現況 | 空室 |
| 物件コード | 5880299 | 取引形態 | 仲介 |
| 住宅保険 | 指定家財保険加入要 | めやす賃料 |
|
| 契約 | 普通借家 | 仲介手数料 | 1.1ヶ月 |
| 更新料 | 23万円 | 更新事務手数料 | |
| 設備 | 追焚、浴室乾燥機、温水洗浄便座、エアコン3基、照明付、ピクチャーレール、下駄箱、シューズインクローク、エレベーター、宅配ボックス、ゴミ置場、駐輪場、BS、CS、グリル、シリンダーキー(ディンプル)、エアコン | ||
| 入居条件 | ペット相談(ペット飼育時敷金1ヶ月積増・使用細則遵守・小型犬1匹もしくは猫2匹まで敷金2ヶ月・種類等制限有)、保証人代行必須() | ||
| その他の費用 | 入居時:鍵交換代/33,000円、退去時:清掃費/エアコン清掃費/85,800円 | ||
| 周辺環境 | |||
| 備考 |
各種サイトの物件も当社でまとめてご紹介できます。 最新の情報やお部屋のご相談については上野店までご連絡・ご相談いただければと思います。 |
||
| お店からのコメント | 学生のお部屋探しから、法人様の社宅探しまで、 スタッフ一同、全力で『まごころ』込めてご対応させていただきます。 ぜひ一度、ハウスメイトショップ上野店にお問合せください。 | ||
| 情報更新日 | 2025/12/05 | 次回の情報更新日 | 2025/12/12 |
※各種情報と現状に差異がある場合は、現状優先となります























