JR横浜線「成瀬」駅徒歩2分 テナント【アートヒルズ成瀬】
2025年05月07日 掲載
<新築!>JR横浜線「成瀬」駅徒歩2分
【アートヒルズ成瀬】
1F-B:貸医院、
3F:貸事務所・貸店舗
★外観
★1F-B:貸医院(室内)
★1F-B:間取図
★1F-B:貸医院 概要
●物件所在地:〒194-0011東京都町田市成瀬が丘2-1-6 1F-B
●構造:鉄骨造 ●規模:地上3階建1階部分 ●専有面積:153.14㎡(約46.32坪)
●完成日:2024年12月19日(登記簿)●契約形態:定期借家契約 ●契約期間:10年
●現況:空室 ●引渡日:即日 ●駐車場:無 ●保険:事業用総合保険加入要
●再契約料:新賃料(税込)の1ヶ月分 ●用途地域:近隣商業地域
●飲食店不可 ●医療関係限定
●必要書類:契約書及び申込書(当社指定)、会社謄本、印鑑証明書、その他貸主指定書類 ●審査有り
●取引態様:専任媒介
★アートヒルズ成瀬( 1F-B)の詳細情報、お問い合わせはこちらから
athomeサイト物件詳細ページ
*****************************************************************************************
★3F:貸事務所・貸店舗(室内)
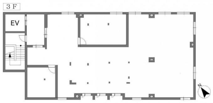
★3F:貸事務所・貸店舗 間取図
★3F:貸事務所・貸店舗 概要
●物件所在地:〒194-0011東京都町田市成瀬が丘2-1-6 3F
●構造:鉄骨造 ●規模:地上3階建3階部分 ●専有面積:220㎡(約66.55坪)
●完成日:2024年12月19日(登記簿)●契約形態:定期借家契約 ●契約期間:5年
●現況:空室 ●引渡日:即日 ●駐車場:無 ●保険:事業用総合保険加入要
●再契約料:新賃料(税込)の1ヶ月分 ●用途地域:近隣商業地域
●飲食店不可
●必要書類:契約書及び申込書(当社指定)、会社謄本、印鑑証明書、その他貸主指定書類 ●審査有り
●取引態様:専任媒介
★アートヒルズ成瀬 (3F)の詳細情報、お問い合わせはこちらから
athomeサイト物件詳細ページ
















