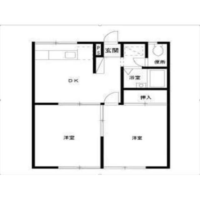
神奈川県相模原市南区大野台4丁目 2DK アパートの物件情報
| 建物構造 | 木造 | 所在階/階数 | 2階/ 地上2階地下0階建て |
|---|---|---|---|
| 駐車場 | 無 | 総戸数 | 6戸 |
| 引き渡し | 即 | 現況 | 空室 |
| 物件コード | 5867373 | 取引形態 | 仲介 |
| 住宅保険 | 指定家財保険加入要 | めやす賃料 |
|
| 契約 | 普通借家 | 仲介手数料 | 要確認 |
| 更新料 | 1ヶ月 | 更新事務手数料 | |
| 設備 | 給湯、BT別、TVモニタ付ドアホン、駐輪場、インターネット接続可、地上デジタル、インターネット無料、室内洗濯機置場 | ||
| 入居条件 | ペット不可、楽器不可、連帯保証人不要+制度入会要、保証人代行必須(エポスカード/エポスカード) | ||
| その他の費用 | すまいサポート241,100円/月、鍵交換代16,500円 | ||
| 周辺環境 | 閑静な住宅街 | ||
| 備考 |
賃貸も売買も♪ハウスメイトショップ大和店へお任せください★ 費用や新しい生活のこと、なんでもご相談ください。住んでからも安心できるお部屋探しをお手伝いします。 |
||
| お店からのコメント | 賃貸も売買も♪◆お引越しって少し不安ですよね。私たちはその「不安」が少しでも「安心」に変わるように、お客様の「ハウスメイト」として、まごころこめてお部屋探しをお手伝いさせていただきます◆ハウスメイトショップ大和店は総合仲介店舗として、売買物件や他社様掲載の流通物件もご紹介可能です◆お気軽にお声がけ下さいませ◆ | ||
| 情報更新日 | 2026/01/30 | 次回の情報更新日 | 2026/02/06 |
※各種情報と現状に差異がある場合は、現状優先となります




























