ロイヤルパークス赤羽ノース 937の物件情報
| 建物構造 | 鉄筋コンクリート | 所在階/階数 | 9階/ 地上10階建て |
|---|---|---|---|
| 駐車場 | 無 | 総戸数 | |
| 引き渡し | 即 | 現況 | |
| 物件コード | 5847062 | 取引形態 | 仲介 |
| 住宅保険 | 指定家財保険加入要 | めやす賃料 |
|
| 契約 | 普通借家 (フリーレント・2ヶ月) | 仲介手数料 | 1.1ヶ月 |
| 更新料 | 1ヶ月 | 更新事務手数料 | |
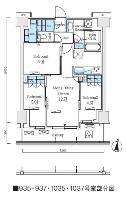
| 設備 | BT別、追焚、浴室乾燥機、洗面所独立、バルコニー(面積 :10m2)、フローリング、ウォークインクロゼット、オートロック、エレベーター、宅配ボックス、バイク置場、BS、CS、敷地内ゴミ置き場、システムK、グリル、[管理員区分]日勤、食洗機、食器乾燥機、フロントサービス、エアコン、室内洗濯機置場 | ||
| 入居条件 | ペット相談、楽器相談(ピアノ可)、事務所使用不可、保証人代行必須(クレディセゾン・レジデントアシスタンス株式会社/初回保証委託料(最低15,000円):月額賃料等の50%、 2年目以降:10,000円/年) | ||
| その他の費用 | クリーニング代100,870円、口座振替事務手数料220円/月 | ||
| 周辺環境 | |||
| 備考 |
ハウスメイトショップ本店は池袋駅西口から徒歩1分♪8番出口を出てすぐのビル7F♪ 豊島区・板橋区・北区・文京区・練馬区を中心に取り扱い物件多数ございます♪オンラインでのご相談もお受付しています♪ |
||
| お店からのコメント | ハウスメイトショップ本店は【池袋駅西口から徒歩1分】8番出口を登ってすぐのビルの7Fです!豊島区・板橋区・北区・文京区・練馬区を中心に取り扱い物件多数ございます♪お部屋探しの流れからご契約の注意点まで、丁寧にご対応させて頂きます!ご来店が難しい方は、オンラインでのご相談もお受付しています♪ | ||
| 情報更新日 | 2026/04/30 | 次回の情報更新日 | 2026/05/07 |
※各種情報と現状に差異がある場合は、現状優先となります













