アジュールテラス日本橋浜町 705の物件情報
| 建物構造 | 鉄筋コンクリート | 所在階/階数 | 7階/ 地上10階建て |
|---|---|---|---|
| 駐車場 | 無 | 総戸数 | |
| 引き渡し | 2025年12月下旬 | 現況 | 空室 |
| 物件コード | 5934750 | 取引形態 | 仲介 |
| 住宅保険 | 指定家財保険加入要 | めやす賃料 |
|
| 契約 | 普通借家 | 仲介手数料 | 要確認 |
| 更新料 | 1ヶ月 | 更新事務手数料 | |
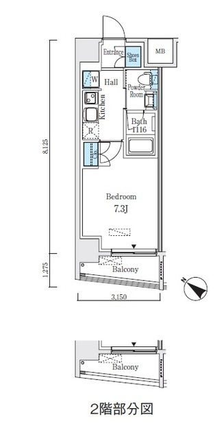
| 設備 | BT別、浴室乾燥機、洗面所独立、バルコニー(面積 :1m2)、フローリング、オートロック、エレベーター、宅配ボックス、バイク置場、BS、CS、敷地内ゴミ置き場、システムK、[管理員区分]日勤、ペット足洗い場、24時間ゴミ出し可、エアコン、室内洗濯機置場 | ||
| 入居条件 | ペット相談、事務所使用不可、保証人代行必須(オリコフォレントインシュア/初回保証委託料(最低20,000円):月額賃料等の50%、2年目以降:10,000円/年) | ||
| その他の費用 | 鍵代22,000円、クリーニング代44,000円、口座振替事務手数料110円/月 | ||
| 周辺環境 | |||
| 備考 | |||
| 情報更新日 | 2025/12/18 | 次回の情報更新日 | 2025/12/25 |
※各種情報と現状に差異がある場合は、現状優先となります









