ルフォンプログレ蔵前プレミア 1005
| 交通 | 賃料(+管理費) | 物件種別 | 敷金/礼金 |
|---|---|---|---|
|
東京都浅草線蔵前駅 徒歩3分 総武本線馬喰町駅 徒歩12分 総武・中央緩行線浅草橋駅 徒歩7分 東京地下鉄銀座線田原町駅 徒歩13分 東京都大江戸線蔵前駅 徒歩8分 |
21.3万円 (+18,000円) |
マンション | 1ヶ月/1ヶ月 |
| 間取り/専有面積 | 築年月 | 方位 | 保証金/敷引 |
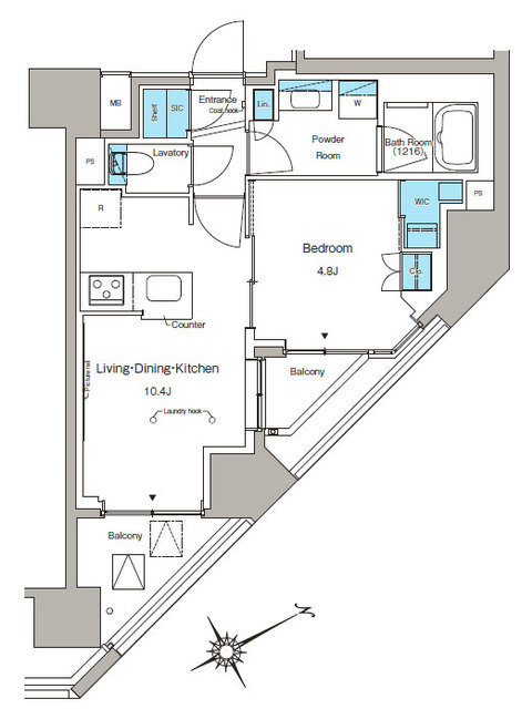
| 1LDK/40.78m2 | 2022年01月 | 南東 | 無/無 |
ルフォンプログレ蔵前プレミア 1005の物件情報
| 建物構造 | 鉄筋コンクリート | 所在階/階数 | 10階/ 地上14階建て |
|---|---|---|---|
| 駐車場 | 無 | 総戸数 | |
| 引き渡し | 2026年2月上旬 | 現況 | 入居中 |
| 物件コード | 5934610 | 取引形態 | 仲介 |
| 住宅保険 | 指定家財保険加入要 | めやす賃料 |
|
| 契約 | 普通借家 | 仲介手数料 | 要確認 |
| 更新料 | 1ヶ月 | 更新事務手数料 | |
| 設備 | BT別、追焚、浴室乾燥機、洗面所独立、バルコニー(面積 :9m2)、フローリング、ウォークインクロゼット、オートロック、エレベーター、宅配ボックス、バイク置場、BS、CS、敷地内ゴミ置き場、システムK、グリル、[管理員区分]日勤、ペット足洗い場、エアコン、室内洗濯機置場 | ||
| 入居条件 | ペット相談、事務所使用不可、保証人代行必須(クレディセゾン・レジデントアシスタンス株式会社/初回保証委託料(最低15,000円):月額賃料等の50%、 2年目以降:10,000円/年) | ||
| その他の費用 | 鍵代22,000円、クリーニング代62,801円、口座振替事務手数料110円/月 | ||
| 周辺環境 | |||
| 備考 | |||
| 情報更新日 | 2025/12/18 | 次回の情報更新日 | 2025/12/25 |
※各種情報と現状に差異がある場合は、現状優先となります



















