パークキューブ西ヶ原ステージ 423
| 交通 | 賃料(+管理費) | 物件種別 | 敷金/礼金 |
|---|---|---|---|
|
東京都荒川線西ヶ原四丁目駅 徒歩4分 山手線巣鴨駅 徒歩15分 東京地下鉄南北線駒込駅 徒歩18分 東京地下鉄南北線西ヶ原駅 徒歩11分 東京都三田線西巣鴨駅 徒歩9分 |
18.5万円 (+10,000円) |
マンション | 1ヶ月/1ヶ月 |
| 間取り/専有面積 | 築年月 | 方位 | 保証金/敷引 |
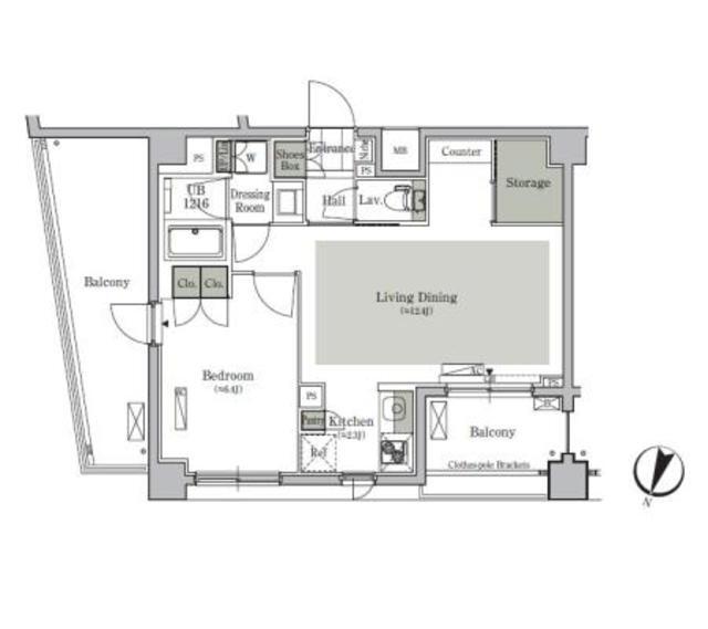
| 1LDK/48.12m2 | 2009年12月 | 北 | 無/無 |
パークキューブ西ヶ原ステージ 423の物件情報
| 建物構造 | 鉄筋コンクリート | 所在階/階数 | 2階/ 地上14階地下2階建て |
|---|---|---|---|
| 駐車場 | 無 | 総戸数 | |
| 引き渡し | 2025年12月下旬 | 現況 | 空室 |
| 物件コード | 5926085 | 取引形態 | 仲介 |
| 住宅保険 | 指定家財保険加入要 | めやす賃料 |
|
| 契約 | 定期借家 | 仲介手数料 | 要確認 |
| 更新料 | なし | 更新事務手数料 | |
| 設備 | BT別、追焚、浴室乾燥機、洗面所独立、バルコニー(面積 :17m2)、フローリング、床暖房、オートロック、モニタ付オートロック、エレベーター、宅配ボックス、バイク置場、インターネット接続可(接続環境:ADSL)、BS、CS、敷地内ゴミ置き場、システムK、グリル、[管理員区分]日勤、フロントサービス、耐震構造、24時間ゴミ出し可、エアコン、室内洗濯機置場 | ||
| 入居条件 | ペット相談、楽器相談(ピアノ可)、事務所使用不可、保証人代行必須(レジデントアシスタンス株式会社/初回保証委託料(最低20,000円):月額賃料等の50%、 2年目以降:9,600円/年) | ||
| その他の費用 | 鍵代16,500円、クリーニング代89,984円、口座振替事務手数料110円/月 | ||
| 周辺環境 |
3駅以上利用可 3沿線以上利用可 その他:その他 その他:その他 その他:その他 |
||
| 備考 | |||
| 情報更新日 | 2025/12/06 | 次回の情報更新日 | 2025/12/13 |
※各種情報と現状に差異がある場合は、現状優先となります
パークキューブ西ヶ原ステージ 423の地図・周辺情報
























