パークアクシス仲御徒町 1202の物件情報
| 建物構造 | 鉄筋コンクリート | 所在階/階数 | 12階/ 地上13階建て |
|---|---|---|---|
| 駐車場 | 無 | 総戸数 | |
| 引き渡し | 2026年3月上旬 | 現況 | 入居中 |
| 物件コード | 5918230 | 取引形態 | 仲介 |
| 住宅保険 | 指定家財保険加入要 | めやす賃料 |
|
| 契約 | 普通借家 | 仲介手数料 | 1.1ヶ月 |
| 更新料 | 1ヶ月 | 更新事務手数料 | |
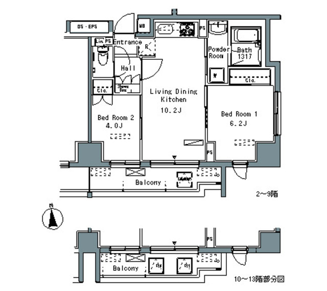
| 設備 | BT別、追焚、浴室乾燥機、洗面所独立、バルコニー(面積 :6m2)、フローリング、オートロック、モニタ付オートロック、エレベーター、宅配ボックス、バイク置場、インターネット接続可(接続環境:ADSL)、BS、CS、敷地内ゴミ置き場、グリル、[管理員区分]巡回、ペット足洗い場、24時間ゴミ出し可、エアコン、室内洗濯機置場 | ||
| 入居条件 | ペット相談、楽器相談(ピアノ可)、事務所使用不可、保証人代行必須(レジデントアシスタンス株式会社/初回保証委託料(最低20,000円):月額賃料等の50%、 2年目以降:9,600円/年) | ||
| その他の費用 | 鍵代22,000円、クリーニング代88,095円、口座振替事務手数料110円/月 | ||
| 周辺環境 | |||
| 備考 |
各種サイトの物件も当社でまとめてご紹介できます。 最新の情報やお部屋のご相談については青戸店までご連絡・ご相談いただければと思います。 |
||
| お店からのコメント | 学生のお部屋探しから、法人様の社宅探しまで、 スタッフ一同、全力で『まごころ』込めてご対応させていただきます。 ぜひ一度、ハウスメイトショップ青戸店にお問合せください。 | ||
| 情報更新日 | 2025/12/05 | 次回の情報更新日 | 2025/12/13 |
※各種情報と現状に差異がある場合は、現状優先となります









