ルフォンプログレ田原町 1404の物件情報
| 建物構造 | 鉄筋コンクリート | 所在階/階数 | 14階/ 地上15階地下0階建て |
|---|---|---|---|
| 駐車場 | 空無し | 総戸数 | 74戸 |
| 引き渡し | 即 | 現況 | |
| 物件コード | 5886638 | 取引形態 | 仲介 |
| 住宅保険 | 指定家財保険加入要 | めやす賃料 |
|
| 契約 | 普通借家 (フリーレント・1ヶ月[賃料のみ、違約金あり(1年半未満1ヵ月)]) | 仲介手数料 | 1.1ヶ月 |
| 更新料 | 1ヶ月 | 更新事務手数料 | |
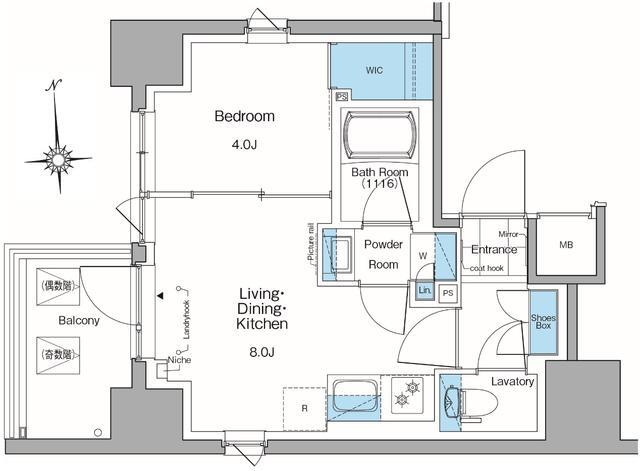
| 設備 | 給湯、BT別、追焚、浴室乾燥機、洗面所独立、洗面台、温水洗浄便座、角部屋、バルコニー、フローリング、エアコン2基、TVモニタ付ドアホン、オートロック、宅配ボックス、駐輪場、バイク置場、インターネット接続可(接続環境:光)、地上デジタル、BS、CS、セキュリティシステム、防犯カメラ、システムK、ガスレンジ、シリンダーキー(ディンプル)、インターネット無料、エアコン、都市ガス、室内洗濯機置場、ガスコンロ二口設置済み | ||
| 入居条件 | ペット相談(小型犬or猫1匹迄 敷金1ヶ月積み増し)、楽器不可、連帯保証人要、保証人代行必須(レジデンシャルサービス/【収納代行】初回保証料賃料共益費等50%、以後1年毎25% 月々口振事務手数料220円(税込)利用設) | ||
| その他の費用 | 清掃代 ※20㎡超+1,375円/㎡39,600円/退去時、エアコン清掃代16,500円/台16,500円/退去時 | ||
| 周辺環境 |
3駅以上利用可 3沿線以上利用可 |
||
| 備考 |
各種サイトの物件も当社でまとめてご紹介できます。 最新の情報やお部屋のご相談については青戸店までご連絡・ご相談いただければと思います。 |
||
| お店からのコメント | 学生のお部屋探しから、法人様の社宅探しまで、 スタッフ一同、全力で『まごころ』込めてご対応させていただきます。 ぜひ一度、ハウスメイトショップ青戸店にお問合せください。 | ||
| 情報更新日 | 2025/12/05 | 次回の情報更新日 | 2025/12/12 |
※各種情報と現状に差異がある場合は、現状優先となります















