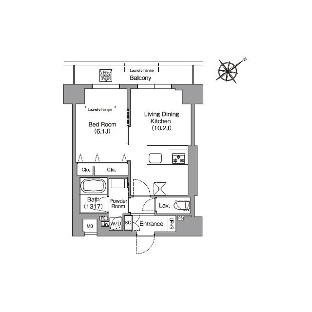
東京都墨田区向島5丁目 1LDK マンションの物件情報
| 建物構造 | 鉄筋コンクリート | 所在階/階数 | 5階/ 地上7階地下0階建て |
|---|---|---|---|
| 駐車場 | 無 | 総戸数 | 74戸 |
| 引き渡し | 2026年5月下旬 | 現況 | 入居中 |
| 物件コード | 6024657 | 取引形態 | 仲介 |
| 住宅保険 | 指定家財保険加入要 | めやす賃料 |
|
| 契約 | 普通借家 | 仲介手数料 | 要確認 |
| 更新料 | 18.6万円 | 更新事務手数料 | |
| 設備 | 追焚、浴室乾燥機、洗面所独立、温水洗浄便座、フローリング、エアコン2基、照明付、下駄箱、シューズインクローク、TVモニタ付ドアホン、オートロック、エレベーター、宅配ボックス、ゴミ置場、駐輪場、バイク置場、インターネット接続可、BS、CS、防犯カメラ、システムK、グリル、シリンダーキー(ディンプル)、防音サッシ、24時間ゴミ出し可、インターネット無料、室内物干機、エアコン、室内洗濯機置場 | ||
| 入居条件 | 保証人代行必須(クレディセゾン/保証料:賃料等50%(最低1.5万)、月次:賃料等1%(更新料無)、口座振替手数料借) | ||
| その他の費用 | 入居時:鍵交換代/33,000円、退去時:清掃費/エアコン清掃費/99,000円 | ||
| 周辺環境 | |||
| 備考 | ハウスメイト門前仲町店は他物件もご紹介させていただきます。 | ||
| お店からのコメント | ハウスメイトショップ門前仲町店は中央区・江東区を中心とした東京エリアの賃貸情報を豊富に取り揃えております♪物件のご相談はお気軽にお問合せ下さい♪ | ||
| 情報更新日 | 2026/04/30 | 次回の情報更新日 | 2026/05/08 |
※各種情報と現状に差異がある場合は、現状優先となります























