東京都江東区東雲1丁目 1LDK マンションの物件情報
| 建物構造 | 鉄筋コンクリート | 所在階/階数 | 12階/ 地上14階地下1階建て |
|---|---|---|---|
| 駐車場 | 無 | 総戸数 | 170戸 |
| 引き渡し | 2026年5月上旬 | 現況 | 入居中 |
| 物件コード | 6006590 | 取引形態 | 仲介 |
| 住宅保険 | 指定家財保険加入要 | めやす賃料 |
|
| 契約 | 普通借家 | 仲介手数料 | 要確認 |
| 更新料 | 19.9万円 | 更新事務手数料 | |
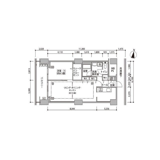
| 設備 | 給湯、BT別、追焚、洗面所独立、温水洗浄便座、エアコン2基、床暖房、ウォークインクロゼット、TVモニタ付ドアホン、オートロック、宅配ボックス、ゴミ置場、駐輪場、バイク置場、インターネット接続可、BS、CS、CATV、防犯カメラ、24時間ゴミ出し可、エアコン、室内洗濯機置場 | ||
| 入居条件 | 保証人代行必須(レジデンシャルパートナーズ/保証料:賃料等の50%(最低2万)、月額保証・事務手数料:賃料等の1%() | ||
| その他の費用 | 入居時:鍵交換代/33,000円、退去時:清掃費/エアコン清掃費/133,980円 | ||
| 周辺環境 | |||
| 備考 | ハウスメイト門前仲町店は他物件もご紹介させていただきます。 | ||
| お店からのコメント | ハウスメイトショップ門前仲町店は中央区・江東区を中心とした東京エリアの賃貸情報を豊富に取り揃えております♪物件のご相談はお気軽にお問合せ下さい♪ | ||
| 情報更新日 | 2026/04/30 | 次回の情報更新日 | 2026/05/08 |
※各種情報と現状に差異がある場合は、現状優先となります













