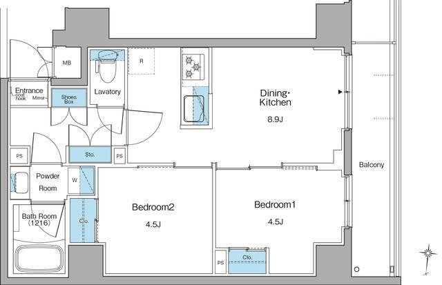
東京都江東区三好1丁目 2DK マンションの物件情報
| 建物構造 | 鉄筋コンクリート | 所在階/階数 | 10階/ 地上10階地下0階建て |
|---|---|---|---|
| 駐車場 | 無 | 総戸数 | 27戸 |
| 引き渡し | 即 | 現況 | |
| 物件コード | 6001325 | 取引形態 | 仲介 |
| 住宅保険 | 指定家財保険加入要 | めやす賃料 |
|
| 契約 | 普通借家 (フリーレント・1ヶ月[賃料のみ、1年6ヶ月未満解約違約金1ヶ月]) | 仲介手数料 | 要確認 |
| 更新料 | 1ヶ月 | 更新事務手数料 | |
| 設備 | 給湯、BT別、追焚、浴室乾燥機、洗面所独立、洗面台、温水洗浄便座、最上階、角部屋、バルコニー、フローリング、全室エアコン、エアコン3基、TVモニタ付ドアホン、オートロック、宅配ボックス、駐輪場、バイク置場、インターネット接続可、地上デジタル、BS、CS、セキュリティシステム、防犯カメラ、システムK、グリル、ガスレンジ、シリンダーキー(ディンプル)、インターネット無料、エアコン、都市ガス、室内洗濯機置場、ガスコンロ三口設置済み | ||
| 入居条件 | ペット相談(小型犬or猫いずれか1匹(敷金1積増))、楽器不可、連帯保証人要、保証人代行必須(レジデンシャルサービス/【収納代行】【新築プラン(2026年12月末まで)】初回保証料賃料共益費等20%、以後1年毎20% ) | ||
| その他の費用 | ハウスクリーニング代(特別清掃費用別途)69,850円/退去時、エアコン清掃費1台毎(掃除機能付等別途)16,500円/退去時 | ||
| 周辺環境 |
3駅以上利用可 3沿線以上利用可 |
||
| 備考 | ハウスメイト門前仲町店は他物件もご紹介させていただきます。 | ||
| お店からのコメント | ハウスメイトショップ門前仲町店は中央区・江東区を中心とした東京エリアの賃貸情報を豊富に取り揃えております♪物件のご相談はお気軽にお問合せ下さい♪ | ||
| 情報更新日 | 2026/04/30 | 次回の情報更新日 | 2026/05/08 |
※各種情報と現状に差異がある場合は、現状優先となります























