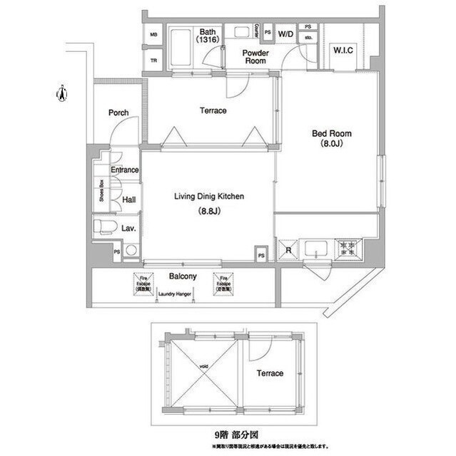
東京都墨田区本所2丁目 1LDK マンションの物件情報
| 建物構造 | 鉄筋コンクリート | 所在階/階数 | 9階/ 地上9階地下0階建て |
|---|---|---|---|
| 駐車場 | 無 | 総戸数 | 48戸 |
| 引き渡し | 2026年2月下旬 | 現況 | 入居中 |
| 物件コード | 5971822 | 取引形態 | 仲介 |
| 住宅保険 | 指定家財保険加入要 | めやす賃料 |
|
| 契約 | 普通借家 | 仲介手数料 | 要確認 |
| 更新料 | 20.5万円 | 更新事務手数料 | |
| 設備 | BT別、追焚、洗面所独立、暖房便座、最上階、角部屋、エアコン2基、TVモニタ付ドアホン、オートロック、エレベーター、宅配ボックス、駐輪場、バイク置場、インターネット接続可、BS、CATV、防犯カメラ、シリンダーキー(ディンプル)、24時間ゴミ出し可、インターネット無料、エアコン、室内洗濯機置場 | ||
| 入居条件 | 保証人代行必須() | ||
| その他の費用 | 入居時:鍵交換代/33,000円、退去時:清掃費/エアコン清掃費/99,000円 | ||
| 周辺環境 | |||
| 備考 | |||
| 情報更新日 | 2026/01/30 | 次回の情報更新日 | 2026/02/07 |
※各種情報と現状に差異がある場合は、現状優先となります























