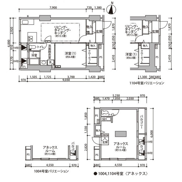
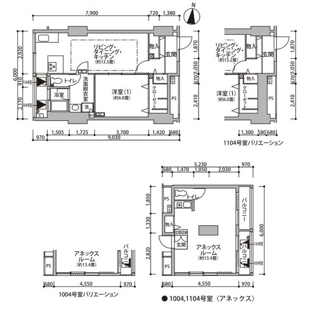
東京都江東区東雲1丁目 1SLDK マンションの物件情報
| 建物構造 | 鉄筋コンクリート | 所在階/階数 | 11階/ 地上14階地下1階建て |
|---|---|---|---|
| 駐車場 | 無 | 総戸数 | 136戸 |
| 引き渡し | 2026年3月下旬 | 現況 | 入居中 |
| 物件コード | 5971628 | 取引形態 | 仲介 |
| 住宅保険 | 指定家財保険加入要 | めやす賃料 |
|
| 契約 | 普通借家 | 仲介手数料 | 要確認 |
| 更新料 | 23.5万円 | 更新事務手数料 | |
| 設備 | 追焚、浴室乾燥機、洗面所独立、温水洗浄便座、エアコン2基、床暖房、下駄箱、シューズインクローク、TVモニタ付ドアホン、宅配ボックス、ゴミ置場、駐輪場、バイク置場、インターネット接続可、BS、CS、CATV、防犯カメラ、24時間ゴミ出し可、エアコン、室内洗濯機置場 | ||
| 入居条件 | 保証人代行必須() | ||
| その他の費用 | 入居時:鍵交換代/33,000円、退去時:清掃費/エアコン清掃費/113,190円 | ||
| 周辺環境 | |||
| 備考 | |||
| 情報更新日 | 2026/01/30 | 次回の情報更新日 | 2026/02/07 |
※各種情報と現状に差異がある場合は、現状優先となります























