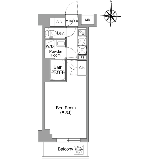
東京都江東区大島8丁目 1K マンションの物件情報
| 建物構造 | 鉄筋コンクリート | 所在階/階数 | 5階/ 地上6階地下0階建て |
|---|---|---|---|
| 駐車場 | 無 | 総戸数 | 71戸 |
| 引き渡し | 2025年12月上旬 | 現況 | |
| 物件コード | 5879377 | 取引形態 | 仲介 |
| 住宅保険 | 指定家財保険加入要 | めやす賃料 |
|
| 契約 | 普通借家 | 仲介手数料 | 要確認 |
| 更新料 | 12.8万円 | 更新事務手数料 | |
| 設備 | BT別、浴室乾燥機、洗面所独立、温水洗浄便座、角部屋、照明付、24時間換気システム、エレベーター、宅配ボックス、ゴミ置場、駐輪場、バイク置場、BS、CS、シリンダーキー(ディンプル)、防音サッシ、エアコン、室内洗濯機置場 | ||
| 入居条件 | ペット相談(小型犬1匹もしくは猫2匹まで小型犬1匹もしくは猫2匹まで)、保証人代行必須() | ||
| その他の費用 | 退去時:清掃費/エアコン清掃費/49,500円 | ||
| 周辺環境 | |||
| 備考 | ハウスメイト門前仲町店は他物件もご紹介させていただきます。 | ||
| お店からのコメント | ハウスメイトショップ門前仲町店は中央区・江東区を中心とした東京エリアの賃貸情報を豊富に取り揃えております♪物件のご相談はお気軽にお問合せ下さい♪ | ||
| 情報更新日 | 2025/12/05 | 次回の情報更新日 | 2025/12/12 |
※各種情報と現状に差異がある場合は、現状優先となります






















