
Maison deLacue 201の物件情報
| 建物構造 | 鉄筋コンクリート | 所在階/階数 | 2階/ 地上3階建て |
|---|---|---|---|
| 駐車場 | 付無料 | 総戸数 | |
| 引き渡し | 即 | 現況 | |
| 物件コード | 5893458 | 取引形態 | 仲介 |
| 住宅保険 | 指定家財保険加入要 | めやす賃料 |
117583円 |
| 契約 | 普通借家 [契約期間]2年 | 仲介手数料 | 1.1ヶ月 |
| 更新料 | 1ヶ月 | 更新事務手数料 | |
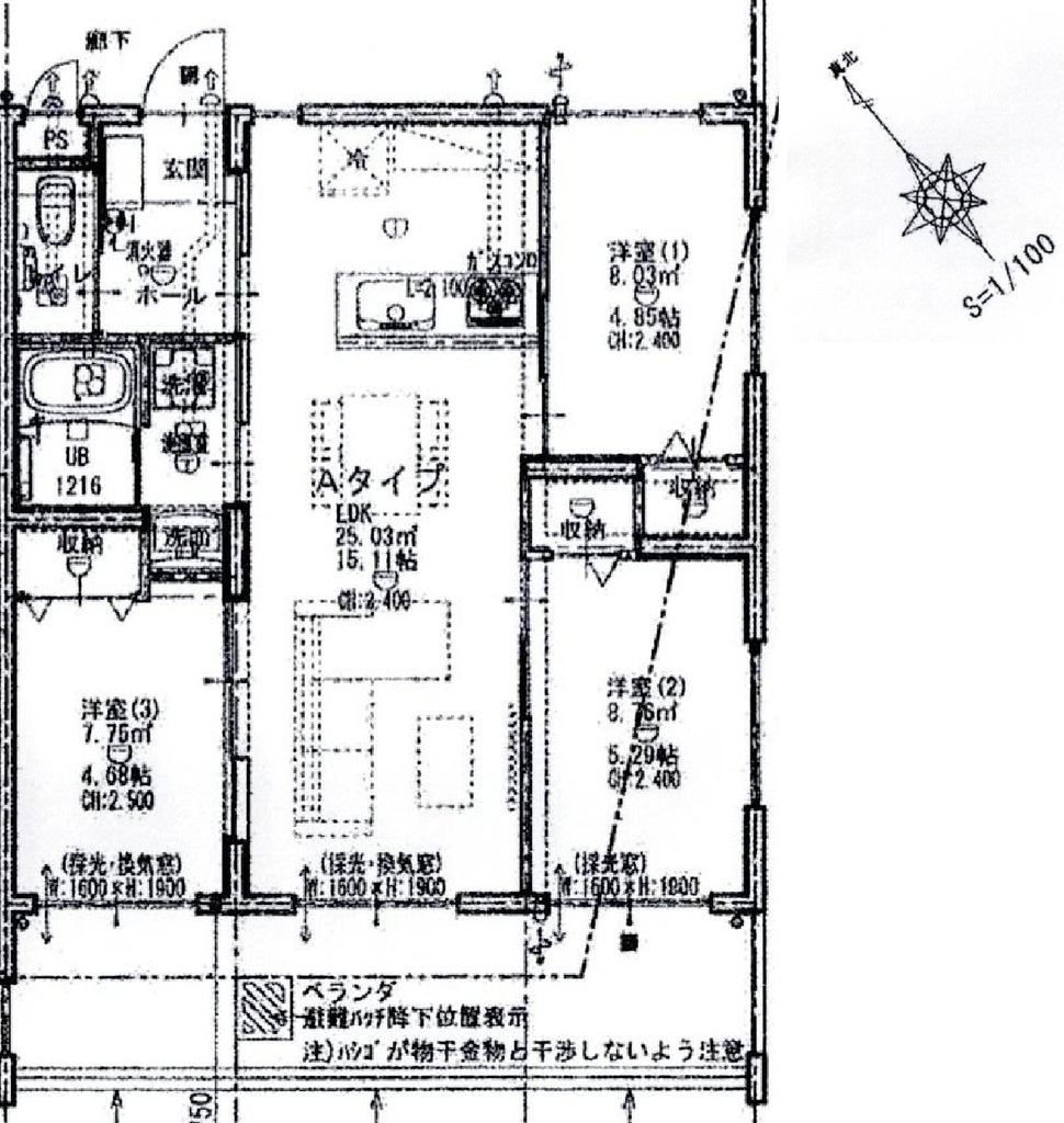
| 設備 | 給湯、BT別、シャワー、脱衣所、洗面所独立、洗面台、洗面化粧台、3点給湯、角部屋、バルコニー、LDK15畳以上、フローリング、全室フローリング、収納、クロゼット、インターホン、TVモニタ付ドアホン、インターネット接続可、システムK、カウンタK、対面K、インターネット無料、エアコン、室内洗濯機置場、ガスコンロ三口設置済み | ||
| 入居条件 | |||
| その他の費用 | クリーニング代70,000円/退去時、エアコンクリーニング費11,000円/退去時 | ||
| 周辺環境 | |||
| 備考 |
☆2025年8月完成☆新築☆お部屋で事務所・事業使用などのご相談も可能です! ★3LDK☆インターネット無料☆ガス乾燥機ついてます(*^^*)/お気軽にお問い合わせください♪ |
||
| お店からのコメント | ☆2025年8月完成☆新築☆お部屋で事務所・事業使用などのご相談も可能です!★3LDK☆インターネット無料☆ガス乾燥機ついてます(*^^*)/お気軽にお問い合わせください♪ | ||
| 情報更新日 | 2026/01/04 | 次回の情報更新日 | 2026/02/07 |
※各種情報と現状に差異がある場合は、現状優先となります










