NEORA Ray Materia B棟 の物件情報
| 建物構造 | 鉄筋コンクリート | 所在階/階数 | 1階/ 地上3階建て |
|---|---|---|---|
| 駐車場 | 無 | 総戸数 | 5戸 |
| 引き渡し | 2026年4月下旬 | 現況 | |
| 物件コード | 5855049 | 取引形態 | 仲介(専任) |
| 住宅保険 | 指定家財保険加入要 | めやす賃料 |
|
| 契約 | 普通借家 [契約期間]2年 | 仲介手数料 | 25.85万円 |
| 更新料 | 更新事務手数料 | 11000円 | |
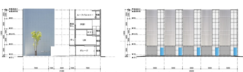
| 設備 | 給湯、BT別、シャワー、追焚、脱衣所、洗面所独立、シャワー付洗面化粧台、温水洗浄便座、3点給湯、バルコニー、メゾネット(1階-2階)、ロフト、収納、クロゼット、下駄箱、TVモニタ付ドアホン、オートロック、ゴミ置場、インターネット接続可、地上デジタル、敷地内ゴミ置き場、システムK、グリル、エアコン、室内洗濯機置場、ガスコンロ三口設置済み | ||
| 入居条件 | 2人可、子供可、ルームシェア可、ペット相談(小型犬、猫計2匹迄飼育可能。ペット飼育時退去時クリーニング費用家賃1か月分)、楽器不可、事務所使用可(事務所使用の場合、別途課税)、連帯保証人不要+制度入会要、保証人代行必須(えるく、全保連、OFI/初回保証料総額賃料100%、継続更新料1年毎1万) | ||
| その他の費用 | 消毒代41,800円/入居時、Nサポート1,210円/月 | ||
| 周辺環境 |
スーパー:ゆめマート福津 260m コンビニ:ファミリーマート JR福間駅店 700m コンビニ:ローソン 福津花見が丘一丁目店 450m スーパー:ルミエール 福津店 750m ホームセンター:ミスターマックスSelect 福津店 700m ショッピングセンター:イオンモール福津 1600m 小学校:福津市立福間小学校 700m 中学校:福津市立福間中学校 750m |
||
| 備考 |
【入居受付開始】2025年4月下旬入居予定のガレージ付の未来型集合住宅。 ペット飼育可能(小型犬、猫計2匹迄)、事務所使用可能(登記OK)※条件変更あり。アイランドキッチン 短期解約違約金:1年未満家賃の1ヵ月分 解約時、契約者負担にて美装代が必要となります。 退去時室内清掃費、エアコン洗浄費借主負担 |
||
| お店からのコメント | 【入居受付開始】2025年4月下旬入居予定のガレージ付の未来型集合住宅。ペット飼育可能(小型犬、猫計2匹迄)、事務所使用可能(登記OK)※条件変更あり。アイランドキッチン、ロフト付、2か所トイレ、屋上テラス等戸建て風賃貸物件。ガレージ内は倉庫や自転車、バイクも可能です! | ||
| 情報更新日 | 2026/03/01 | 次回の情報更新日 | 2026/03/24 |
※各種情報と現状に差異がある場合は、現状優先となります


















