リープラス御着駅前Ⅱ の物件情報
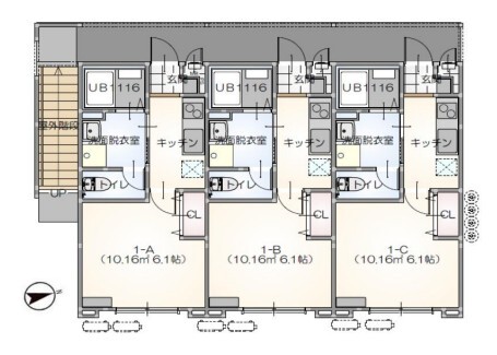
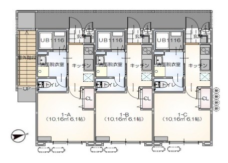
| 建物構造 | 木造 | 所在階/階数 | 1階/ 地上2階建て |
|---|---|---|---|
| 駐車場 | 近隣駐車場 料金(税込み)0.6万円 | 総戸数 | 6戸 |
| 引き渡し | 即 | 現況 | |
| 物件コード | 5959559 | 取引形態 | 仲介(専任) |
| 住宅保険 | 指定家財保険加入要 | めやす賃料 |
|
| 契約 | 普通借家 [契約期間]2年 | 仲介手数料 | 要確認 |
| 更新料 | 更新事務手数料 | ||
| 設備 | 給湯、BT別、シャワー、シャワー付洗面化粧台、温水洗浄便座、収納、TVモニタ付ドアホン、インターネット接続可、地上デジタル、室内洗濯機置場、IHコンロ二口 | ||
| 入居条件 | ペット不可 | ||
| その他の費用 | クリーニング代44,000円/退去時、緊急サポート1,100円、町内会費400円/月 | ||
| 周辺環境 | 日当たり良好 | ||
| 備考 | |||
| 情報更新日 | 2026/04/09 | 次回の情報更新日 | 2026/05/08 |
※各種情報と現状に差異がある場合は、現状優先となります








