
上京区十四軒町貸家 1の物件情報
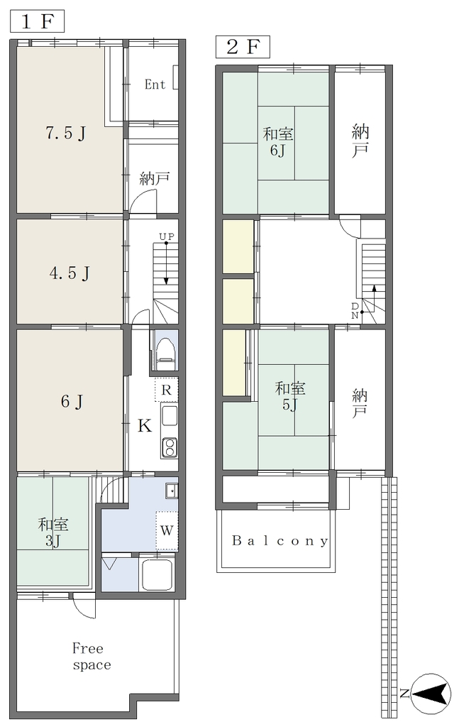
| 建物構造 | 木造 | 所在階/階数 | 1階/ 地上2階建て |
|---|---|---|---|
| 駐車場 | 無 | 総戸数 | 1戸 |
| 引き渡し | 即 | 現況 | 空室 |
| 物件コード | 5896123 | 取引形態 | 仲介(専任) |
| 住宅保険 | 指定家財保険加入要 | めやす賃料 |
159375円 |
| 契約 | 普通借家 [契約期間]2年 | 仲介手数料 | 16.5万円 |
| 更新料 | 15万円 | 更新事務手数料 | なし |
| 設備 | 給湯、BT別、シャワー、追焚、脱衣所、洗面所独立、シャワー付洗面化粧台、暖房便座、3点給湯、角部屋、バルコニー、メゾネット(1階-2階)、収納、押入、下駄箱、TVモニタ付ドアホン、駐輪場、地上デジタル、都市ガス、室内洗濯機置場、ガスコンロ設置可 | ||
| 入居条件 | 2人可、子供可、ルームシェア不可、ペット不可、楽器不可、連帯保証人不要+制度入会要(審査により必要な場合有り。)、保証人代行必須(えるくor全保連orOFI/初回総賃料の100%、10,000円/年の更新料) | ||
| その他の費用 | 引越虫駆除(光触媒プラン)46,200円/入居時、鍵代27,500円/入居時、Nサポート1,210円/月 | ||
| 周辺環境 |
コンビニ:ローソン 仁和寺街道七本松店 700m ホームセンター:コーナン西陣上七軒店 1000m 病院:洛和会丸太町病院 550m スーパー:イオンスタイル西ノ京小町店 1300m 小学校:京都市立二条城北小学校 350m 中学校:京都市立二条中学校 850m |
||
| 備考 |
当店ではオンラインでの相談・申込・契約手続きも可能です☆ お部屋探しはハウスメイトショップ京都西院店まで、お気軽にご相談くださいませ☆ 退去時室内清掃費(畳・襖・障子がある場合、貼替費)借主負担 |
||
| お店からのコメント | ハウスメイト掲載物件をご覧頂き誠にありがとうございます。当店ではオンラインでのご相談・申込・契約手続きも可能となっております☆市内・近郊弊社インターネット掲載物件以外でもご紹介可能ですので、お気軽にお客様のご条件等お申し付け下さいませ♪ピッタリのオススメ物件をご紹介させていただきます♪その他、引越しに関する心配事等なんでもお気軽にご相談下さりましたら幸いです♪ | ||
| 情報更新日 | 2026/03/13 | 次回の情報更新日 | 2026/05/07 |
※各種情報と現状に差異がある場合は、現状優先となります






























































