
moka 106の物件情報
| 建物構造 | 軽量鉄骨 | 所在階/階数 | 1階/ 地上2階建て |
|---|---|---|---|
| 駐車場 | 有敷地内 料金(税込み)0.33万円 | 総戸数 | 10戸 |
| 引き渡し | 2025年12月下旬 | 現況 | 入居中 |
| 物件コード | 2136951 | 取引形態 | 仲介(専任) |
| 住宅保険 | 指定家財保険加入要 | めやす賃料 |
56500円 |
| 契約 | 普通借家 [契約期間]2年 (フリーレント・1ヶ月[短期解約違約金あり(1年未満での解約は家賃の1カ月分)]) | 仲介手数料 | 5.83万円 |
| 更新料 | 1ヶ月 | 更新事務手数料 | なし |
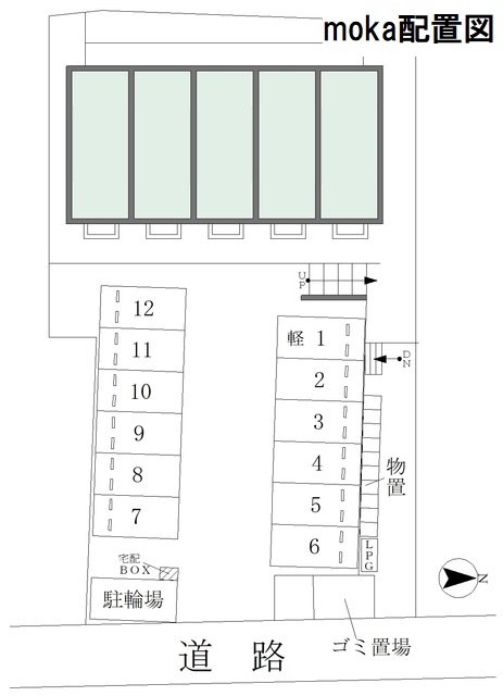
| 設備 | 給湯、BT別、シャワー、追焚、浴室乾燥機、脱衣所、洗面所独立、シャワー付洗面化粧台、温水洗浄便座、3点給湯、角部屋、バルコニー、ペアガラス、24時間換気システム、下駄箱、床下収納、ウォークインクロゼット、物置、TVモニタ付ドアホン、宅配ボックス、ゴミ置場、駐輪場、インターネット接続可、地上デジタル、BS、24h管理、敷地内ゴミ置き場、システムK、電子キー、当社管理物件、インターネット無料、セキュリティ会社加入済、浴室暖房、エアコン、室内洗濯機置場、IHコンロ二口 | ||
| 入居条件 | 2人不可、子供不可、ルームシェア不可、ペット不可、楽器不可、事務所使用不可、連帯保証人不要+制度入会要、保証人代行必須(オリコフォレントインシュア/保証料:請求月額の1ヶ月分(最低保証料2万円)継続保証料1万円/年)、カード決済可( 初期費用 ) | ||
| その他の費用 | 消毒代18,920円/入居時、クリーニング代55,000円/入居時、鍵代3,300円/入居時、Nサポート990円/月 | ||
| 周辺環境 |
お勧め物件 コンビニ:ローソン富田十文字店 770m コンビニ:セブンイレブン桑野4丁目店 780m ドラッグストア:ウエルシア郡山桑野店 860m スーパー:ヨークベニマル桑野店 990m 銀行:東邦銀行富田支店 1300m ショッピングセンター:ザ・モール郡山店 3300m その他:郡山富田駅 2100m 大学:郡山女子大学 2300m |
||
| 備考 |
◆ご契約日より賃料1ヵ月分無料でご入居いただけます!(個人契約のお客様限定)◆ ◆インターネット無料◆追焚、浴室乾燥機、システムキッチン、TVモニターホン付き!お荷物受取りが出来る宅配BOX設置済み◆ ※法人契約時礼金1ヶ月発生※短期解約違約金あり ★ご契約日より賃料1ヵ月分無料でご入居いただけます!(個人契約のお客様限定)★ |
||
| お店からのコメント | 賃貸のことならハウスメイト郡山店へご相談ください!郡山市を中心に須賀川市やいわき市でお部屋をお探しの際は是非当店へお越しください♪ピンクの看板が目印です★お車でお越しの際は店舗前の専用駐車場をご利用ください。明るいスタッフがお待ちしております♪ | ||
| 情報更新日 | 2025/12/01 | 次回の情報更新日 | 2025/12/12 |
※各種情報と現状に差異がある場合は、現状優先となります



























































