
宮城県仙台市青葉区千代田町 ワンルーム アパートの物件情報
| 建物構造 | 木造 | 所在階/階数 | 1階/ 地上2階建て |
|---|---|---|---|
| 駐車場 | 無 | 総戸数 | 1戸 |
| 引き渡し | 即 | 現況 | 空室 |
| 物件コード | 5921637 | 取引形態 | 仲介 |
| 住宅保険 | 指定家財保険加入要 | めやす賃料 |
19000円 |
| 契約 | 普通借家 [契約期間]2年 | 仲介手数料 | 1.87万円 |
| 更新料 | なし | 更新事務手数料 | |
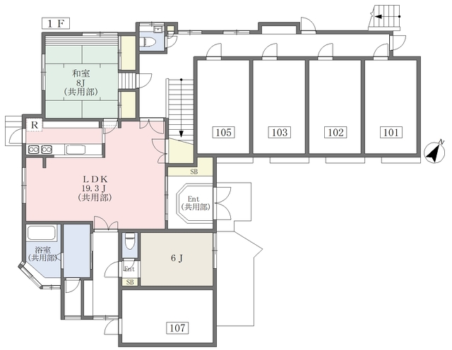
| 設備 | BT別、温水洗浄便座、インターネット無料、エアコン | ||
| 入居条件 | 2人不可、女性限定、留学生可、事務所使用不可、連帯保証人不要+制度入会要、保証人代行必須(ジェイリース株式会社/初回保証料:月額賃料の50%・継続保証委託料:10,000円/1年毎) | ||
| その他の費用 | 水道光熱費6,000円/月 | ||
| 周辺環境 |
お勧め物件 大学:東北福祉大学 100m 大学:東北福祉大学ステーションキャンパス 850m コンビニ:ファミリーマート 東北福祉大学店 350m 郵便局:仙台子平町郵便局 800m スーパー:みやぎ生協貝ヶ森店 1300m コンビニ:ローソン 仙台国見一丁目店 600m |
||
| 備考 |
◆女性限定の賃貸物件◆東北福祉大まで徒歩2分の立地です◆インターネット使用料無料 ◆外国人・留学生入居可能です◆お風呂やキッチンは共同設備となります◆ オンライン内見、IT重説ご対応可能です |
||
| お店からのコメント | ◆賃貸のことならハウスメイト仙台泉店にご相談ください。仙台市泉区を中心に青葉区・宮城野区・富谷市・大和町で賃貸物件をお探しの際はぜひ当店へお越しください!市営地下鉄南北線『八乙女』駅から徒歩3分!ピンクの看板が目印です!★お車でお越しのお客様→店舗手前側と店舗前に専用駐車場(合計7台分)をご用意しております!迷われた際はお気軽にお電話ください☆店内にはキッズルームあり☆感染対策も行っております◆ | ||
| 情報更新日 | 2025/12/05 | 次回の情報更新日 | 2026/05/08 |
※各種情報と現状に差異がある場合は、現状優先となります
宮城県仙台市青葉区千代田町 ワンルーム アパートの地図・周辺情報








